服务项目
Service Items
服务项目
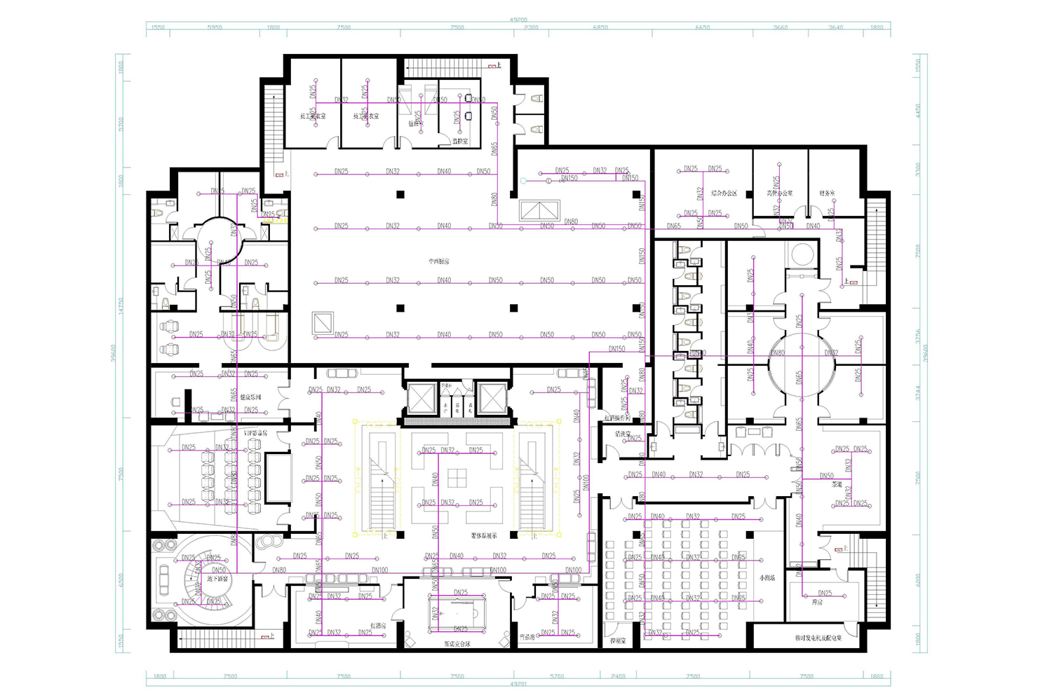
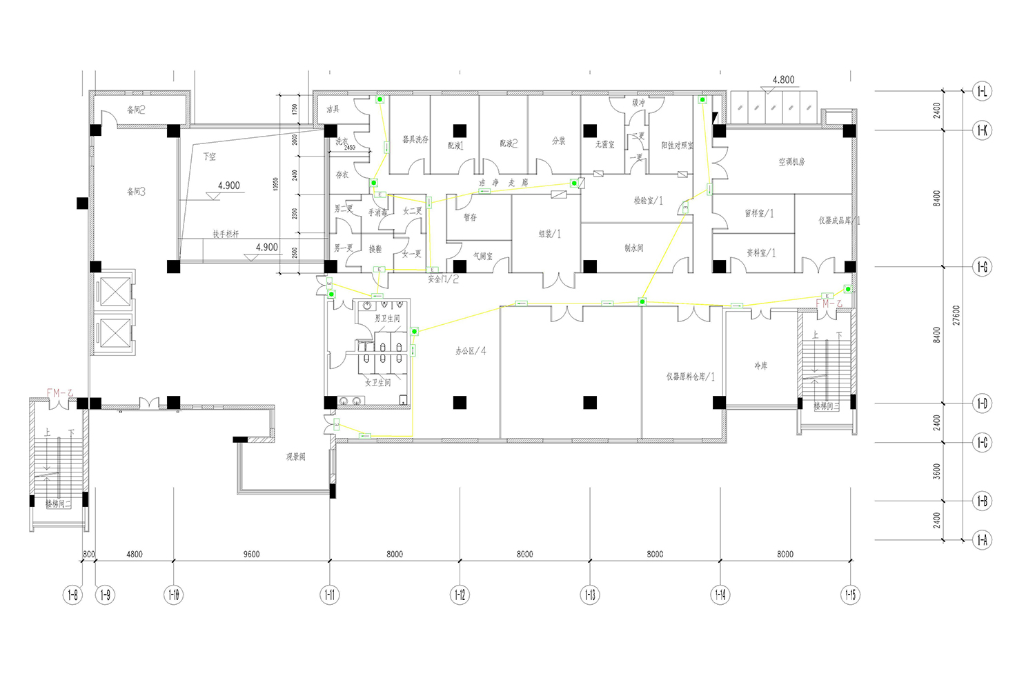
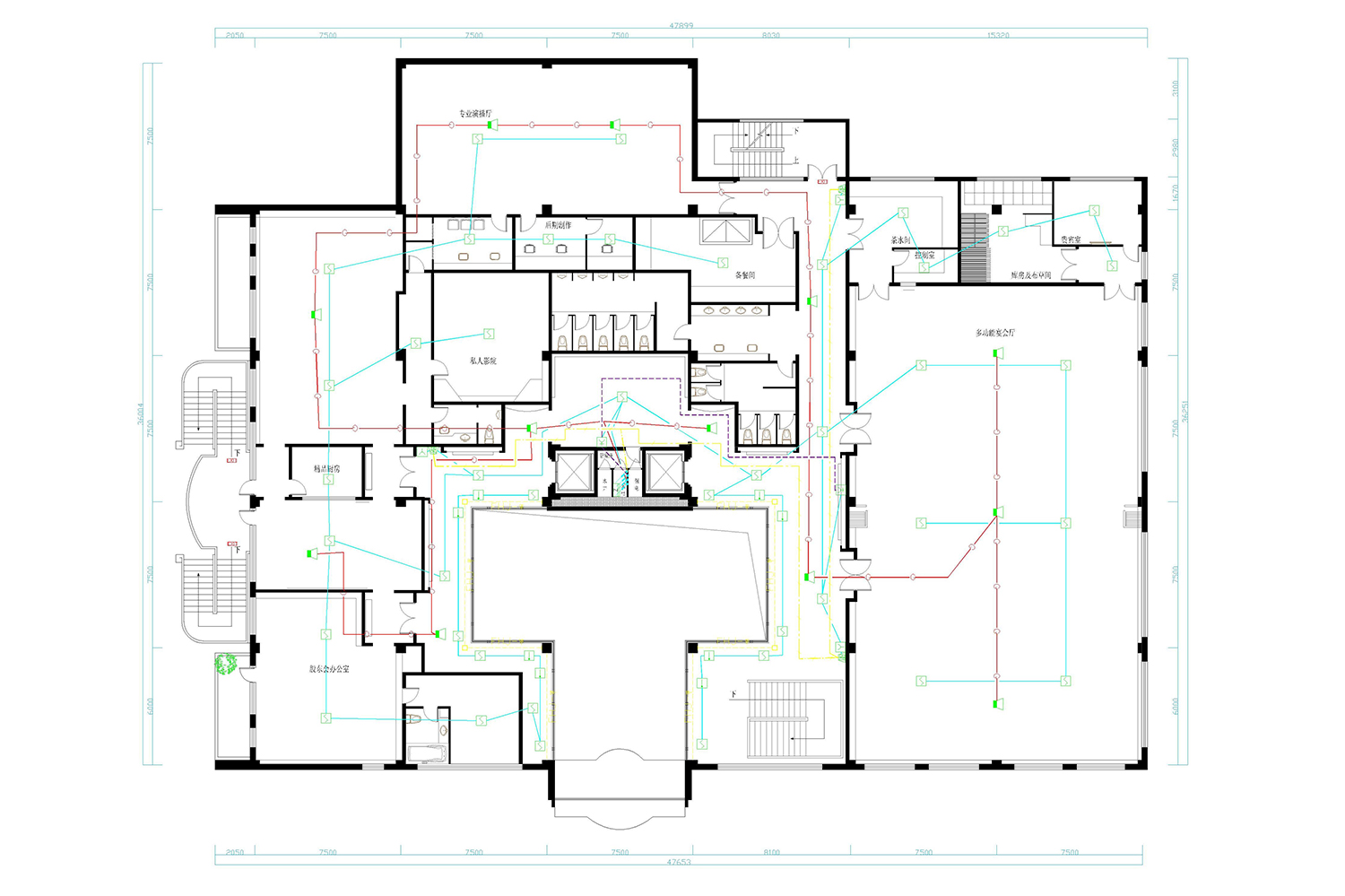
  我公司承接办公室、商业、餐饮、酒店、教育、医院、养老、厂房库房等场所火灾自动报警及联动系统、疏散指示应急照明系统、消防自动喷淋系统、室内外消火栓系统、气体灭火系统、防排烟系统等设施的消防施工图深化设计、消防图纸报审工作。
火灾自动报警系统
火灾自动报警系统
疏散应急照明系统
疏散应急照明系统
火灾自动喷淋系统
火灾自动喷淋系统
室内外消火栓系统
室内外消火栓系统
消防防烟排烟系统
消防防烟排烟系统
服务优势
Service advantages
价格优势 价格透明且性价比高,服务效率高
时间优势 对诉求及时响应,解决客户的疑惑,以最快的速度达成满意的成果
技术优势 具有丰富的消防设计经验,形成了一套完善的设计运作模式
服务到位 及时周到的服务和客户的满意度作为我司一切工作的标准。
公司简介
about us

北京技牛消防工程技术有限公司成立于2010年1月25日,公司专注于消防工程图纸设计、消防图纸报审工作多年,立足建筑消防设计技术咨询与服务的新技术企业。通过严谨、专业的标准化管理煅造了一支经验丰富、技术熟练、服务到位的专业设计团队。

公司一直坚持“信守合同、严守规范、确保质量、竭诚服务、创建精品、持续改进”的质量方针,永远遵信“用户至上”的原则,不断提高服务水准。

愿北京技牛公司与各界朋友携手并进、共同发展、与时俱进、不断创造新的辉煌。

查看详情
工程案例
Engineering Cases